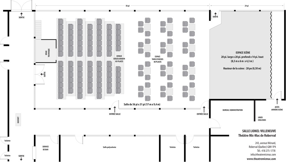
La salle multifonctionnelle, peut recevoir jusqu’à 150 spectateurs, la scène et les gradins peuvent se déplacer au gré des productions.
Adresse:
243 Avenue Ménard
Roberval
(Québec)
G8H 1P4
Tel:
418 275-1778
Courriel:
theatremicmac@cgocable.ca
This website uses cookies so that we can provide you with the best user experience possible. Cookie information is stored in your browser and performs functions such as recognising you when you return to our website and helping our team to understand which sections of the website you find most interesting and useful.
Strictly Necessary Cookie should be enabled at all times so that we can save your preferences for cookie settings.
This website uses Google Analytics to collect anonymous information such as the number of visitors to the site, and the most popular pages.
Keeping this cookie enabled helps us to improve our website.